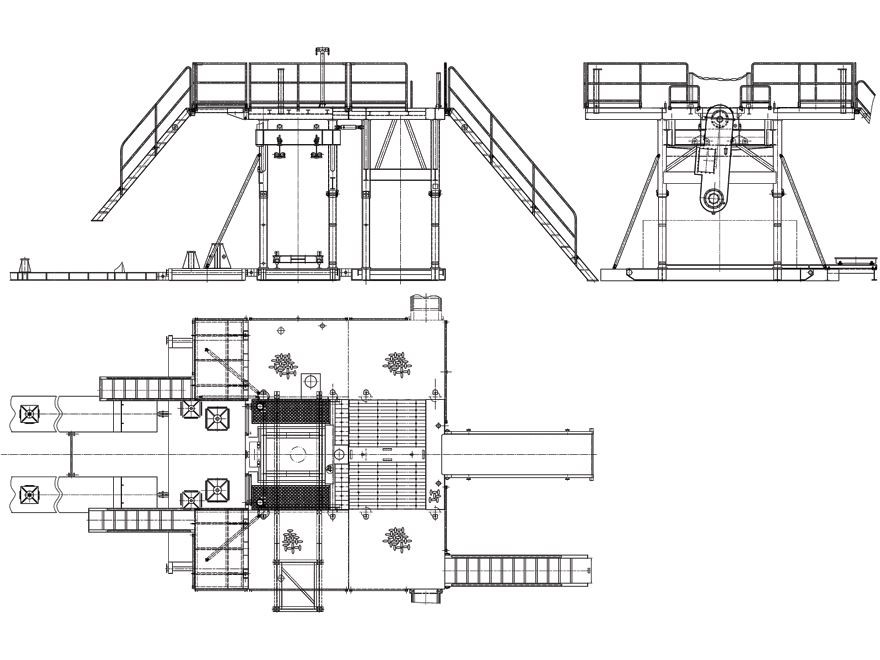
The substructure is one of the important components of the truck-mounted drilling rig and the workover rig, which consists of the boat basement, mast substructure, substructure body, floating platform, ramp, BOP installation device, etc.
RIG Substructure
描述
Product Name: RIG Substructure
Substructure
Overview
The substructure is one of the important components of the truck-mounted drilling rig and the workover rig, which consists of the boat basement, mast substructure, substructure body, floating platform, ramp, BOP installation device, etc.
Boat basement is mainly used to support the main unit of the rig. Mast substructure support mast and the load of the hook block. Substructure body supports the load of rotary table and save standing. The floating platform on the substructure body store wellhead tools and offer working area for driller and wellhead worker. The lower of substructure body can provide space for installation of rig tool. The BOP installation device is used to install BOP. Slide way is used to lift or put down the drill pipe.
The load of the drilling rig can be passed to the substructure and the earth by the previous different parts when the drilling rig is working.
Features
Designed and manufactured in accordance with API Spec 4F standards.
ANSYS finite element analysis technique is used to check the load distribution.
The material of the low temperature substructure is low-alloy, high-strength, low-temperature impact-resistance material, and it is welded according to low temperature welding process, so it can meet the requirements of -45℃ low temperature environment.
Depending on the structure, the substructure is divided into telescoping type, folding type and integral type.
Main standards for the design and manufacture of substructure are as follows:
GB/T 23505: Petroleum Drilling and Workover Rigs
SY/T 5609: The types and basic parameters for oil drilling rigs
API Spec 4F: Specification for Drilling and Well Servicing Structures
SY/T 5170: Petroleum and natural gas industries-specification for wire rope
SY/T 5025: Specification for drilling and well servicing structures
API Spec 8A/8C: Specification for Drilling and Production Hoisting Equipment
Model
The commonly used product models of the substructure are as follows: ZZT160, ZZT180, ZZT225, etc.
Z06030000042AA,Z06020000004AA
Hot Tags: RIG substructure, suppliers, factory, pricelist, in stock, made in China, PSZ75, WCB124, RIG Substructure, P9000095AA, PSZ65-2-01, Z16120102001AA


